参观模拟火星栖息地,4名美国宇航局模拟宇航员将在这里度过下一年
德克萨斯州休斯顿美国宇航局约翰逊航天中心的3D打印模拟火星基地“火星沙丘阿尔法”内部。(图片来源:NASA)
(蜘蛛网eeook.com)据美国太空网(Josh Dinner):一周前,美国国家航空航天局将四个人锁在一个模拟的火星栖息地内,等待下一年的到来,我们刚刚得到了模拟太空基地内生活的最佳一瞥。
这个3D打印的模拟火星基地位于美国宇航局位于得克萨斯州休斯顿的约翰逊航天中心,被称为火星沙丘阿尔法,是该机构有史以来第一次为凯利·哈斯顿、罗斯·罗克韦尔、纳森·琼斯和安卡·塞拉利乌的机组人员执行健康和性能探索模拟(CHAPEA)任务的地方。
这是三个CHAPEA任务中的第一个,NASA正在研究如何最好地设计和计划未来的火星任务。这四名宇航员将在栖息地内生活和工作,同时与任务控制操作员协调,开展类似于真正宇航员在火星上的活动,包括地球和红色星球之间存在的22分钟通信延迟。
当CHAPEA-1四人组履行他们的职责时,美国宇航局的研究人员将密切关注机组人员本身。在长达一年的逗留期间,它们如何与它们的栖息地互动,以及彼此之间的互动,将提供至关重要的数据,这些数据可以告知从家具布局和膳食计划到船员分配和设备维护的所有事情。
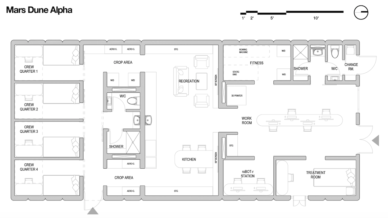
对于CHAPEA-1机组人员来说,Mars Dune Alpha提供了四个独立的睡眠区,内部总面积为1700平方英尺。今年早些时候,美国宇航局推特账户上发布的一段视频简要介绍了这个栖息地及其毗邻的1200平方英尺的围栏,用于模拟宇航员“探索”火星表面的舱外活动。
中央有红色三角形CHAPEA mission标志的白色门。门口和结构墙由堆叠的3D打印红粘土彩色层制成。通往火星沙丘阿尔法的大门,这是位于德克萨斯州休斯顿的美国宇航局约翰逊航天中心的3D打印CHAPEA任务栖息地。(图片鸣谢:NASA/NASA视频截图)
穿过火星沙丘阿尔法步道,可以看到厕所和淋浴区对面走廊里的一排船员宿舍。大厅的尽头是一个小规模农产品生产区,旁边是一个开放式厨房和休闲区,里面摆放着餐桌和休闲家具。
穿过公共空间的门口通向工作区,工作区有一张桌子和摆放设备的架子。两边的房间里有健身和洗衣设备,机器人控制站和3D打印机。开放工作区的另一个门口有一个小型医疗舱,位于栖息地主要气闸的对面。
火星沙丘阿尔法平面图。模拟火星栖息地是明年四名美国宇航局模拟宇航员的家。(图片鸣谢:NASA/Melodie Yashar)
模拟火星土壤和红色岩石悬崖的背景排列在建筑物的墙壁上,为CHAPEA-1机组人员提供尽可能完全的沉浸感,同时他们执行EVAs和其他任务研究。在2024年7月7日“返回”地球之前,他们将使用这个区域作为他们从火星沙丘阿尔法唯一的出口。
在那之前,在栖息地气闸另一边的火星沙箱将是模拟宇航员改变风景的唯一机会。















